da Graça Ribeiro

Villa Ferreira & Costa

Study | Alenquer, Portugal | 2017

 

This project was conceived for a 62 years old couple with a preference for vernacular architecture.  But the intention was to show to the couple that their vernacular values could be present in contemporary architecture.

 So instead of symmetry, slopped roofs, stone and white plaster walls; it became asymmetric, with a roofed garden and uncoated beige concrete while still meeting the couple’s values.

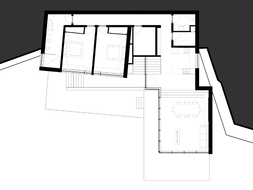
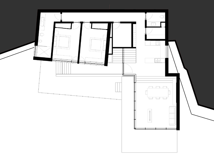
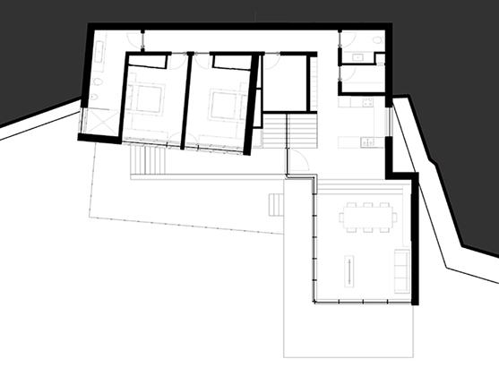
 The house’s volumes decompose down the hill, towards the city were the couple once lived. The common spaces are open, mixing the kitchen and the living room to bring all the family together in the frequent events they like to gather.

 

Este projecto foi concebido para um casal de 62 anos de idade com uma forte preferência pela arquitectura vernacular. No entanto, a intenção era mostrar ao casal que os valores que tanto apreciam na arquitectura vernacular também estão presentes na arquitectura contemporânea.

Assim, em vez de simetria, telhados inclinados, paredes de pedra e gesso branco; o projecto tornou-se assimétrico, com uma cobertura ajardinada e com betão bege à vista, não perdendo o foco nos valores arquitectónicos do casal.

Os volumes da casa decompôem-se ao longo da colina, em direcção à cidade onde o casal outrora viveu. Os espaços comuns estão abertos, associando a cozinha e a sala de estar de forma a reunir toda a família nos eventos frequentes que tanto gostam de realizar.

next project: LiangMeng School Library & Canteen

© 2020, Nuno da Graça Ribeiro, All Rights Reserved