da Graça Ribeiro

LiangMeng School Library

Competition | Puan, China | 2017

 

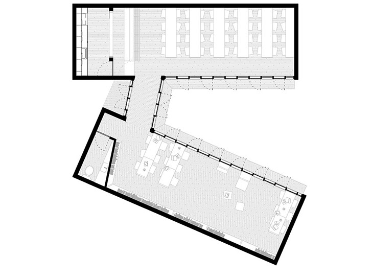
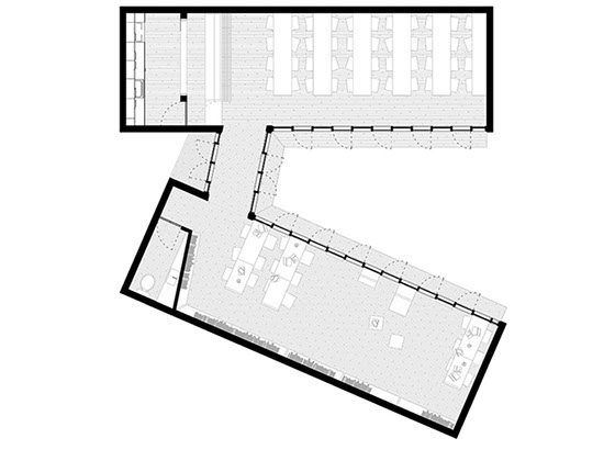
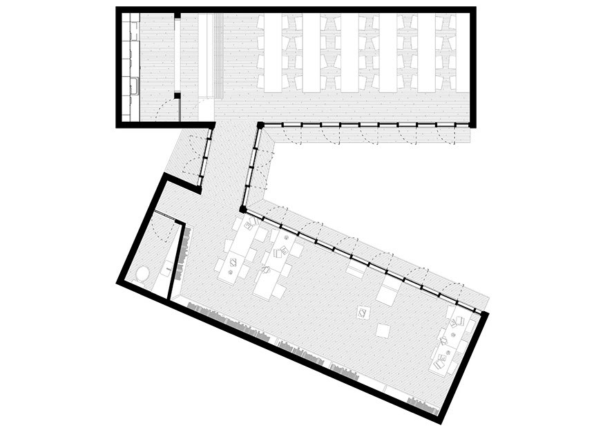
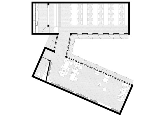
This project was designed for the 120 Hours contest of 2017. The program consited of a 100 m2 canteen and library to accommodate 200 children of the LiangMeng School complex. The project was to be built in an underdeveloped part of China, which meant that these functions needed to be solved in a very rudimentary and pragmatic way.

Because it was such a small space, both rooms can interchange its activities. The library space also has special tables that can contract to create an open space for all kinds of activities that the kids and teachers might want to perform.

Due to the local workers lack of contemporary building skills, we looked to the vernacular constructions, in search for clues. The project is composed by two simple volumes connected by a small corridor. It’s built with the locally available stone and wood; however, it denotes its contemporaneity through its form and openness towards the central patio.

 

Este projecto foi desenhado para o concurso 120 hours de 2017. O programa consistia numa cantina e biblioteca de 100 m2 para acomodar 200 crianças do complexo escolar de LiangMeng. Como era para ser construído numa parte subdesenvolvida da China, significava que este precisava de ser resolvido de uma forma muito rudimentar e pragmática.

Por ser um espaço tão pequeno, as duas salas podem trocar as suas actividades. Para além disso, o espaço da biblioteca também conta com um conjunto de mesas especiais rebatíveis que permitem criar um espaço aberto para todos os tipos de actividades que as crianças e os professores possam querer realizar.

Devido à falta de capacidade técnica dos trabalhadores locais, observámos as construções vernáculas, em busca de pistas para o sistema cosntructivo. No final, o projecto organiza-se através de dois volumes simples conectados por um pequeno corredor, construídos com a pedra e madeira disponíveis no local; no entanto, o projecto denota a sua contemporaneidade através da sua forma e abertura em direcção ao pátio central.

next project: Tours Pascal

© 2020, Nuno da Graça Ribeiro, All Rights Reserved