da Graça Ribeiro

SeArch.nl | Competition - 2nd | Den Hague, Netherlands | 2018

 

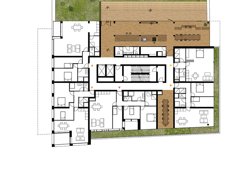
The Trekvliet industrial area is currently undergoing a transformation into an active living and working environment. This is accompanied by the challenge of creating a local identity that has not yet been established; and fill it with the infrastructures that it’s users will need.

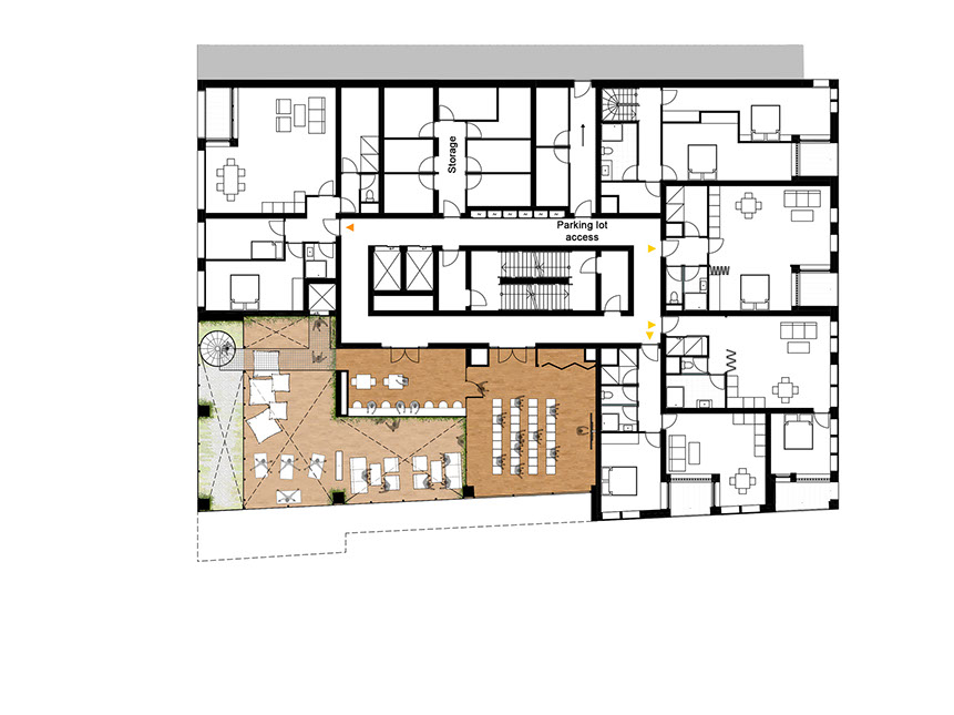
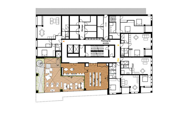
A neighbourhood is defined by an area unit with a radius of 400 meters or a 5-minute walk. A lively neighbourhood is never monofunctional, is constantly changing and offers a wide diversity of living spaces. Through the combination of ten small-scale blocks, each with its own identity and program, a micro neighbourhood is created within the lot.

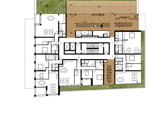
As the project is designed for a diverse group of users, the façade is made up of an accumulation of recognizable blocks. Each has its own type of apartments, although in each floor there’s always a mix of different types. The uneven stacking creates gaps that are used for its green communal spaces.

 

A zona industrial de Trekvliet está atualmente a transformar-se numa zona habitacional e profissional ativa. Esta transformação faz-se acompanhar pelo desafio de criar uma identidade local que ainda não foi estabelecida; e preenchê-la com as infra-estruturas que o novo utilizador irá necessitar.

Pode-se definir uma vizinhança por uma unidade de área com um raio de 400 metros ou 5 minutos de caminhada. Uma vizinhança ativa nunca é monofuncional, muda constantemente e oferece uma ampla diversidade de espaços de convivência. Através da combinação de dez blocos de pequena escala, cada um com a sua própria identidade e programa, uma micro vizinhança é criada dentro do terreno.

Como o projeto foi desenvolvido para um grupo diversificado de utilizadores, a fachada é composta por um conjunto de blocos reconhecíveis. Cada um tem o seu próprio tipo de apartamento, embora em cada andar sempre haja uma mistura de tipos diferentes. O empilhamento desigual cria espaços livres que são usados para como corredores verdes comunitários.

KubX

next project: Villa Ferreira & Costa

© 2020, Nuno da Graça Ribeiro, All Rights Reserved