da Graça Ribeiro

Francos Residence

Academic | Porto, Portugal | 2013

 

Placed on one of the most urbanistically torn sites in Porto city, Francos Residence sought to fix and shorten urban distances. To achieve this, a pedestrian street directly connecting the business district with Francos metro station was built inside the block. In addition, the way to access the apartments is a mix between direct access and gallery access thanks to the typography of the site, which allows the gallery to become a simple extension of the side walk.

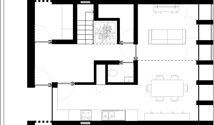
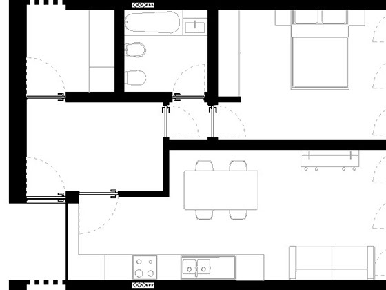
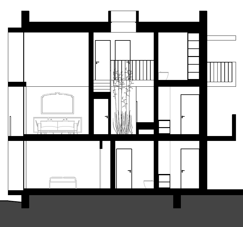
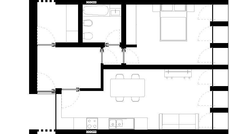
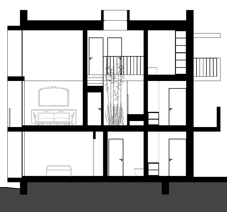
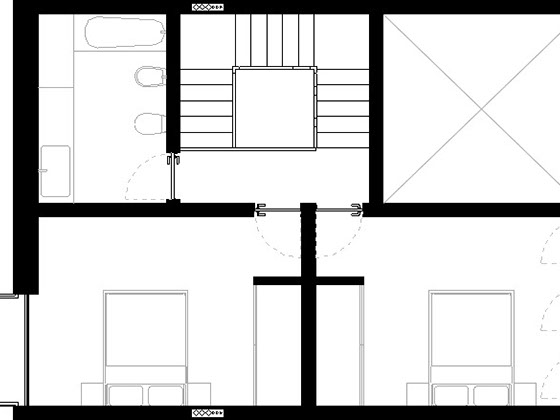
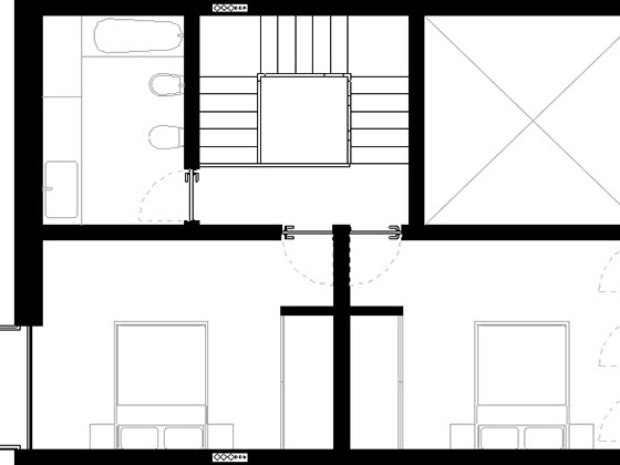
The apartments typology range between studios to four bedrooms, even though the latter is reserved to exceptions. The two and three bedrooms apartments are duplex and have a strong play of ceiling heights between the common areas.

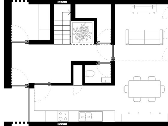
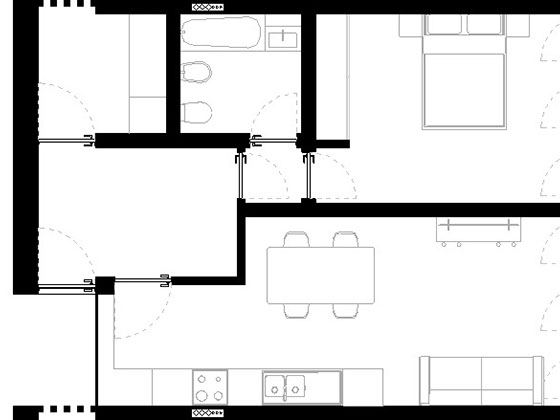
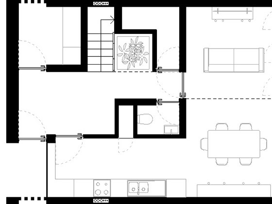
Experience has revealed that a vast number of portuguese families gathers around the kitchen, therefore the kitchen is also perceived as a living room, being able to open itself to the other common areas. The kitchen, the dining room and the living room are all connected and lived simultaneously.

 

Situado numa das zonas mais urbanisticamente negligenciadas da cidade do Porto, Francos Residence procura resolver e encurtar as distâncias urbanas. Deste modo, foi criada dentro do quarteirão uma rua pedonal não prevista pelo plano urbanístico de forma a criar uma conexão directa entre a zona de escritórios e a estação de metro de Francos. Além disso, o modo de acesso aos apartamentos realiza-se numa conjugação entre acesso directo e galeria, graças à tipografia do site que permitia que a galeria se elevasse como uma simples extensão do passeio.

A tipologia dos apartamentos varia entre T1 e T4, ainda que este último esteja reservado a excepções. Os T2 e os T3 são duplex e têm um forte contraste entre o pé-direito das áreas comuns.

Como a experiência tem revelado que um grande número de famílias portuguesas se reúne à volta da cozinha, esta também é percebida como uma zona de estar, podendo abrir-se às outras áreas comuns. A cozinha, a sala de jantar e a sala de estar estão todas ligadas e são experienciadas simultaneamente.

Back to beginning: KubX

© 2020, Nuno da Graça Ribeiro, All Rights Reserved