da Graça Ribeiro

Central Park Summer Pavilion

Competition | New York, United States of America | 2015

 

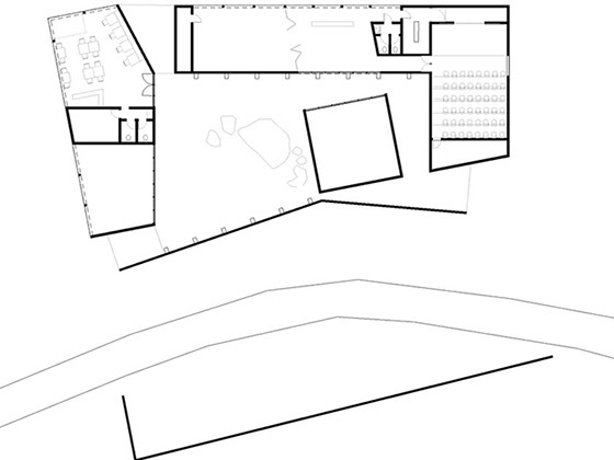
This project was designed for a competition hosted by Arquideas platform. The purpose of this contest was to create a multi-use area in the emblematic and famous Central Park in New York. With this privileged location, it was the objective to become a cultural and leisure reference point for either the inhabitants and the visitors. The project also wants to have the least visual impact on the landscape and blend in the nature of the Central Park. To do so, a mirrored façade blends the building between the trees. The only way to denote that something is there is the bright white interior peeking between the mirrors and the cubic tower that hosts the expo room. Because the contest had no specific place for the project, the enclosed space hosts a large local rock, giving meaning and an anchor to the pavilion’s site.

Sustainability is a key factor in the project. In addition to the lack of special preparation of the site, wood was chosen as a building material for its renewability. The mirrors on the façade aid on reflecting the heat away, saving energy on the climatization so much needed in the summer. As an extra, the roof structure is shaped as a honeycomb, in an effort to raise awareness to the rapidly declining bee’s population and their role in the ecosystem.

 

Este projecto foi desenhado para um concurso da plataforma Arquideas. O propósito era criar uma área multiusos no emblemático e famoso Central Park em Nova Iorque. Com esta localização privilegiada, um dos objectivos era tornar o pavilhão num ponto de referência cultural e de lazer, tanto para os habitantes como para os turistas. O projecto também desejava ter o menor impacto possível na paisagem e misturar-se na natureza do Central Park. Para tal, a fachada espelhada esconde o edifício entre as árvores.  A única forma pelo qual se revela existir algo é através do interior branco que espreita entre os espelhos e a torre cubica que contém a sala de exposições. Como não havia um local específico para construir o projecto, a espaço interior hospeda uma enorme rocha local, dando significado à localização do pavilhão.

A sustentabilidade é um factor fundamental no projecto. Para além do projecto não necessitar de uma preparação espacial do terreno, a madeira foi escolhida como material devida à sua renovabilidade. Os espelhos na fachada ajudam a reflectir o calor, poupando energia na climatização que é tão necessária no Verão. Como extra, a estrutura hexagonal do telhado relembra favos de mel, num esforço para consciencializar sobre o declínio das populações das abelhas e do seu papel no ecossistema.

next project: Urban Art Museum

© 2020, Nuno da Graça Ribeiro, All Rights Reserved